Schönes Bauernhaus mit großem Garten und sehr guter Lage von Zwickau – Dachboden ausbaufähig

Immobilien ID: WI 55904
  • 155.000 €
  • 1.325 € pro m²
08056 Zwickau

Schönes Bauernhaus mit großem Garten und sehr guter Lage von Zwickau – Dachboden ausbaufähig

Immobilien ID: WI 55904
08056 Zwickau
  • 155.000 €
  • 1.325 € pro m²

Einzelheiten

Aktualisiert am Mai 14, 2025 beim 12:01 a.m.
  • Immobilien ID:  WI 55904
  • Preis:  155.000 €
  • Immobilien Größe:  116 m²
  • Grundstücksfläche:  864 m²
  • Schlafzimmer:  2
  • Zimmer:  4
  • Badezimmer:  1
  • Garage Größe:  1 Autostellplatz
  • Baujahr:  1910
  • Immobilien Typ:  Einfamilienhaus
  • Immobilien Status:  Zu Verkaufen

weitere Merkmale

  • Käuferprovision: 4,17 % inkl. MwSt.
  • Anzahl Außenstellplätze: 2
  • Anzahl Garagenstellplätze: 1
  • Wohnfläche: 116,99 m²
  • Nutzfläche: 107,52 m²
  • Terrassen: 1
  • Balkon-/Terrassenfläche: 10,74 m²
  • Anzahl Stellplätze: 3
  • Wohneinheiten: 1.00
  • Art der Ausstattung: Standard
  • Befeuerung: Gas
  • Stellplatzart: Garage, Freiplatz

Beschreibung

Zum Kauf steht ein Bauernhaus von 1910, welches sich in ruhiger und dennoch zentraler Lage von Zwickau befindet. Von hier aus gelangt man fußläufig in die Innenstadt. Eine Kita und eine Grundschule sind ebenfalls in wenigen Laufminuten erreichbar.

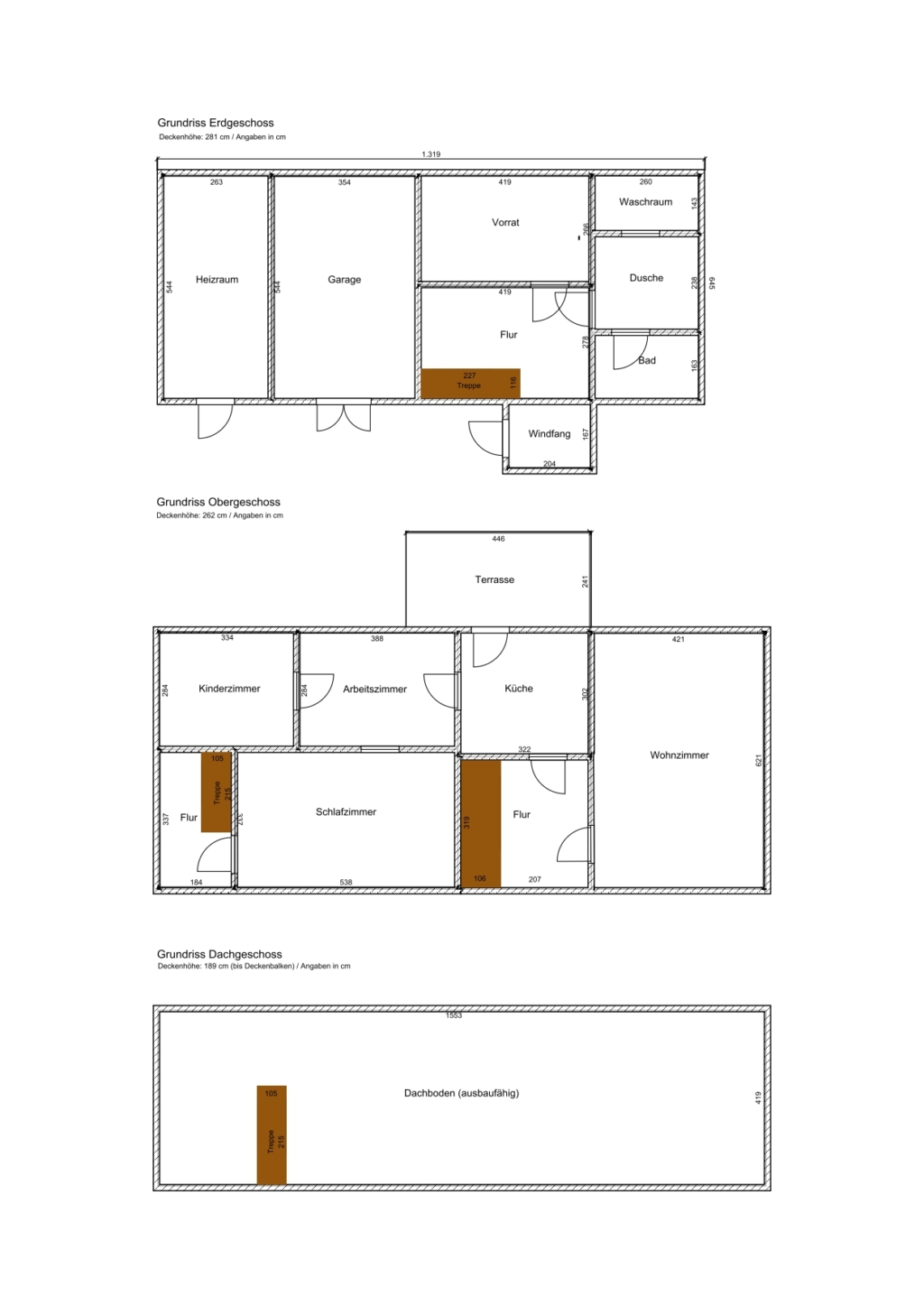
Das Wohnhaus ist Teil eines ehemaligen 3-Seitenhofes, welcher auf 3 Eigentümer aufgeteilt wurde. Aufgrund der durchdachten Aufteilung der Grundstücke, ist das Haus als eigenständiges Wohnhaus mit ca. 864 qm Grundstück eingetragen. Zum Grundstück gehört neben dem Wohnhaus, ein großer Garten mit Schuppen, eine geräumige Terrasse (welche ca. 2017 neu saniert wurde) sowie Stellplatz-Möglichkeiten für Pkw. Im Erdgeschoss befindet sich zudem eine Garage.

Weiterhin gibt es im Erdgeschoss den Heizraum sowie ein Flur nebst Bad, Dusche und Waschraum. Im Obergeschoss befindet sich ein sehr großes Wohnzimmer mit Blick in den grünen Garten. Die Küche mit Zugang zur Terrasse sowie zwei Schlafräume komplettieren die Etage. Eine Etage höher befindet sich der ausbaufähige Dachboden (Kaltdach). Durch den Ausbau sind weitere Wohnräume denkbar.

Beheizt werden die Wohnräume über eine Gas-Zentralheizung von 1994. Das Wegerecht zum Zugang zum Haus über den Hof des 3-Seiten-Hofes wird im Grundbuch mit zugesichert.

Willkommen in der ehemaligen Bergstadt Zwickau. Die Stadt an der Mulde blickt auf eine über 900 Jahre alten Geschichte zurück. Zwickau, im Sächsischen auch oft Zwigge genannt, liegt im Westen von Sachsen und ist mit etwa 90.000 Einwohnern die viertgrößte Stadt im Freistaat.

Die Hochschulstadt ist bekannt als wichtiger Autoindustriestandort – aufgrund seiner guten Lage. Von hier aus sind die Autobahn- sowie Zuganbindungen in alle Himmelsrichtungen optimal ausgebaut. Leipzig, Dresden, Erfurt und Bayreuth in Nordbayern liegen allesamt im 100 km Umkreis.

Schönes Bauernhaus mit großem Garten und sehr guter Lage von Zwickau
+ Grundstücksgröße: ca. 864 qm
+ mit großem Garten und Schuppen
+ Terrasse
+ Pkw-Stellplatz-Möglichkeiten

Zum Wohnhaus
+ ca. 1910 erbaut (EG Massiv ca. 55cm dicke Wände, OG Fachwerk ca. 33cm dicke Wände)
+ Großsanierung: 1993/1994 (Heizung, Fenster, Innenausbau)
+ Wohnfläche: ca. 116,99 qm
+ weitere Nutzfläche: ca. 107,52 qm, u.a. Heizraum, Garage, Dachboden, …
+ mit Garage
+ mit großem Wohnzimmer und Blick ins Grüne
+ mit Rollläden im OG
+ mit Waschraum

Es liegt ein Energieverbrauchsausweis vor.
Dieser ist gültig bis 21.2.2035.
Endenergieverbrauch beträgt 194.20 kwh/(m²*a).
Wesentlicher Energieträger der Heizung ist Gas.
Das Baujahr des Objekts lt. Energieausweis ist 1910.
Die Energieeffizienzklasse ist F.

Das komplette Exposé mit weiteren Fotos, Grundrisse und weitere Unterlagen senden wir Ihnen gerne auf Anfrage per Mail zu.

Wir bitten um Verständnis dafür, dass wir nur vollständige, schriftliche Anfragen
(E-Mail, Fax, Brief, Online) mit Namen, Anschrift und Telefonnummer beantworten können.

Alle Angaben beruhen auf Vorabinformationen des Eigentümers und sind ohne Gewähr. Irrtum, Zwischenverkauf/-vermietung und Preisänderungen bleiben ausdrücklich vorbehalten. Nutzungsarten sowie anliegende Medien erfragen Sie bitte im persönlichen Gespräch oder bekommen Sie vom zuständigen Amt genannt und bestätigt.

Gerne stehen wir Ihnen auch für eine persönliche Beratung zur Verfügung, auch im Falle einer Finanzierung können wir Ihnen behilflich sein, gern vereinbaren wir ein unverbindliches Gespräch bei unseren Experten.

## Sollten Sie jemanden kennen oder selbst etwas verkaufen oder vermieten wollen, empfehlen Sie uns einfach weiter, wir sind für Sie bundesweit tätig. ##

Energieeffizienz

  • Energieausweis-Art: Verbrauch
  • Energieausweis gültig bis: 21.02.2035
  • Energieverbrauchskennwert: 194,20 kWh/(m²*a)
  • Primärenergieträger: Gas
  • Energieeffizienzklasse: F
  • Baujahr (Energieausweis): 1910
  • Energieausweis-Jahrgang: ab Mai 2014
  • Energieausweis-Gebäudeart: Wohngebäude

Grundrisse

image

Beschreibung:

  • Stadt Zwickau
  • Bundesland/Landkreis Sachsen
  • Postleitzahl 08056
  • Land Deutschland

Ausstattung

360° Virtual Tour

Übersicht

  • Einfamilienhaus
  • Immobilien Typ
  • 1910
  • Baujahr
  • 116
  • 4
  • Zimmer
  • 864
  • Grundstück m²
  • 2
  • Schlafzimmer
  • 1
  • Badezimmer

Energieklasse

  • Energieeffizienzklasse: F
  • Endenergieverbrauch: 194,20 kWh/(m²*a)
  • A+
  • A
  • B
  • C
  • D
  • E
  • 194,20 kWh/(m²*a) | Energie-Klasse F
    F
  • G
  • H

Was ist in der Nähe?

Bildung
SILEX Dienstleistungs (0.31 km)
0 Bewertungen
IHK Südwestsachsen (0.52 km)
0 Bewertungen
Kindergarten Martin Hoop (0.53 km)
0 Bewertungen
Deutsche Private Finanzakademie Sachsen (0.74 km)
0 Bewertungen
Humboldtschule (0.79 km)
0 Bewertungen
Gesundheit und Medizin
Apotheke im Globus (0.25 km)
Außergewöhnlich 1 Bewertungen
DRK-Blutspendedienst Sachsen gGmbH (0.25 km)
0 Bewertungen
Zahnfee Zahnkosmetik Zwickau (0.33 km)
Außergewöhnlich 1 Bewertungen
Dipl.-Biol. I. Kaiser (0.39 km)
0 Bewertungen
Waldemar Oehlke (0.39 km)
0 Bewertungen
Einkaufen
Porta (0.11 km)
Außergewöhnlich 3 Bewertungen
Adler Modemarkt (0.29 km)
0 Bewertungen
Möbel-Lenk (0.32 km)
Außergewöhnlich 1 Bewertungen
Dänisches Bettenlager (0.4 km)
Good 1 Bewertungen
Multipolster (0.4 km)
Durchschnittlich 1 Bewertungen

Anbieter dieser Immobilie

Details & Impressum
Wüstenrot Immobilien

Ähnliche Einträge

Compare listings

Vergleichen
Wüstenrot Immobilien
  • Wüstenrot Immobilien